LOCALES COMERCIALES EN RENTA EN PLAZA COMERCIAL EN EL CENTRO DE OAXACA “CASA DE BARRO” | COMMERCIAL SPACE FOR RENT IN DOWNTOWN OAXACA
Reforma 703, RUTA INDEPENDENCIA, Centro Histórico, 68000 Oaxaca de Juárez, Oax., Mexico- 230 m²
Basics
- Category: Commercial rentals
- Type: For Rent
- Status: Available
Description
-
Description:
LOCALES COMERCIALES EN RENTA EN PLAZA COMERCIAL DEL CENTRO DE OAXACA "CASA DE BARRO"
¡Lleva tu negocio al corazón de Oaxaca en Casa de Barro! ✨
¿Buscas el lugar perfecto para tu marca? Casa de Barro no es solo un centro comercial, es un centro de experiencias diseñado para conectar con el público local, turistas y la creciente comunidad extranjera en la ciudad.
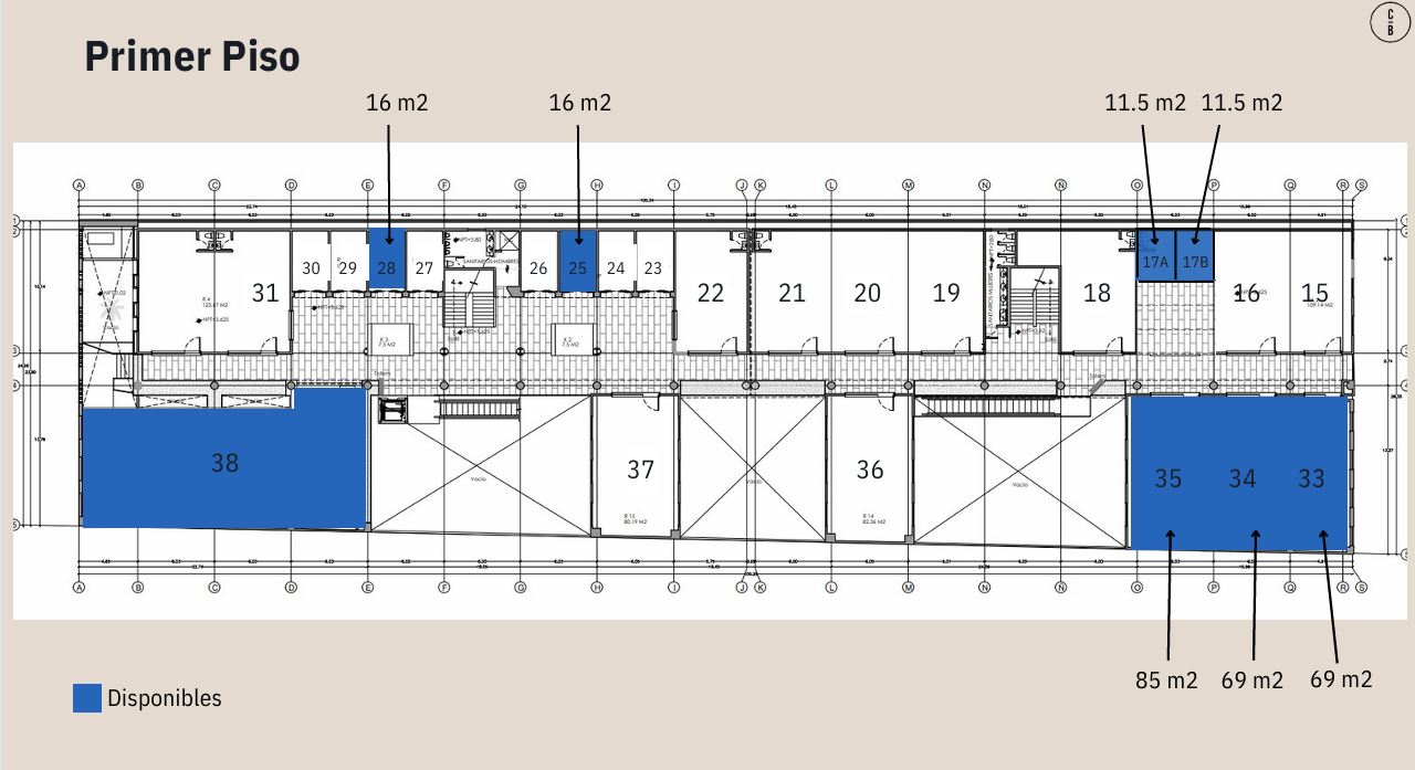
Tenemos espacios disponibles para entrega inmediata:
Locales Boutique (12 a 16 $m^2$): Ideales para servicios, retail de estilo de vida o wellness. Desde $7,000 MXN.
Locales Amplios (69 a 85 $m^2$): Perfectos para conceptos más grandes. Desde $20,000 MXN.
Espacios Premium en Terraza: Ideales para proyectos gastronómicos o sociales con vistas espectaculares. Renta: $500 por $m^2$.
¿Qué incluye tu renta? ✅ Seguridad las 24 hrs. ✅ Acceso a elevador y escaleras eléctricas. ✅ Instalaciones eléctricas e hidráulicas listas. ✅ Meses de gracia para adecuación y facilidades de inicio.
📍 Ubicación privilegiada: Junto al Parque Conzatti y El Llano, en la zona de mayor afluencia turística.
¡Únete a nuestra comunidad! 📩 Envía un mensaje directo para más información y citas.
La plaza además cuenta con:
-Escaleras electricas y de concreto, elevadores, estacionamiento para clientes, cajeros ATM, jardineras, areas para sentarse y baños .
¡No pierdas la oportunidad de establecer tu negocio en uno de los lugares más deseados de Oaxaca!
Contáctanos para más información y agendar una visita: 951-127-1380.
IVA NO INCLUIDO
.
.
.
COMMERCIAL PREMISES FOR RENT IN DOWNTOWN OAXACA
Unique investment opportunity in the heart of Oaxaca! A charming first floor commercial space for rent, ideal for various businesses focused on wellness and healthy lifestyle, on the first floor you will find self-service stores, restaurants, cafes, bars, ice cream parlors, etc.
Second level you will find craft stores, accessories, beauty salon, interior design, food, decorations, etc..
It has its terrace and restaurant with a spectacular view of the city of Oaxaca, the temple of Santo Domingo de Guzman and 5 minutes walk from the Llano de Oaxaca.
Characteristics of the premises:
- *Location:* Downtown Oaxaca, in the recognized Casa de Barro.
- Ideal Focus:* Perfect for yoga studios, wellness centers, cafes, art galleries, tattoo studios, shoe stores, mezcal shops, natural products stores, boutiques, co-working spaces.
- Accessibility:* Ground floor, facilitating access for all customers.
- *Ambiance:* Space with a cozy and quiet atmosphere, vegetation and planters, ideal for creating a relaxing and attractive environment.Location Advantages:
- *Central:* Located in a central area, with high influx of people.
- Connectivity:* Excellent connectivity to other parts of the city.
- Community:* Surrounded by a vibrant and active neighborhood, which ensures a constant flow of potential clients.Business Opportunity:
This location offers an exceptional opportunity for entrepreneurs and established businesses looking to expand in a prime location. The versatility of the space allows it to be adapted to different types of businesses, especially those focused on wellness, healthy lifestyle and convenience for customers, which makes this commercial plaza unique and exclusive in Oaxaca.● Access to electrical and hydraulic installations
● We have escalators and elevators
● 24 hour security service
● Months of grace for installation (depending business model)The plaza also features:
-Electric and concrete stairs, elevators, customer parking, ATM machines, planters, seating areas and restrooms.
Don't miss the opportunity to establish your business in one of the most desirable locations in Oaxaca!
Contact us for more information and to schedule a visit: 951-127-1380
